深溝中古住宅

| 販売価格 | 6,400,000円 |
|---|---|
| 建物面積 | 115.16㎡(34.83坪) |
| 取引形態 | 仲介 |
| 販売価格 | 6,400,000円 | ||
|---|---|---|---|
| 建物面積 | 115.16㎡(34.83坪) | ||
| 取引形態 | 仲介 | ||
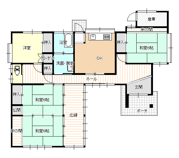
| 所在地 | 山口市深溝 | ||
| 間取り | 4DK | ||
| 建築構造 | 木造 瓦葺 平家建 | ||
| 土地面積 | 521.70㎡(157.81坪) | ||
| 建物面積 | 115.16㎡(34.83坪) | ||
| 築年月 | 昭和49年12月 | ||
| 建ぺい率 | 60% | ||
| 容積率 | 200% | ||
| 学区 | 興進小学校・川西中学校 | ||
| 用途地域 | 用途地域の指定のない区域 | ||
| 設備 | 上水道・個別プロパン・合併浄化槽 | ||
| その他 | 〇境界ポイント設置:売主負担〇建物表題変更登記:売主負担〇令和7年度中に前面道路へ下水道敷設予定(受益者負担金:売主負担)〇物置解体、井戸の埋め戻し:売主負担 〇物件資料はこちら |
||






















